Skip to main content
panorama nature avec panneau affichage
2024
Conception de panneaux d’interprétation pour un espace naturel protégé en Baie du Mont-Saint-Michel

Design signalétique sur le site remarquable du Marais Noir de Saint-Coulban

Le Marais Noir de Saint Coulban est une vaste tourbière de 550 hectares, classée Natura 2000 et labellisée Ramsar pour son importance internationale dans la conservation des oiseaux.
Cet espace naturel appartenant à La Fédération Départementale des Chasseurs d’Ille-et-Vilaine (FDC35) et à la Fondation pour la Protection des Habitats et de la Faune Sauvage depuis 1983 a connu une histoire mouvementée et a été restauré après avoir été asséché dans les années 80.

Le marais est aujourd’hui un site naturel remarquable, à la fois réserve de biodiversité et patrimoine culturel vivant. Il accueille chaque année près de 5 000 oiseaux migrateurs et abrite une importante variété d’espèces animales et végétales.

Au-delà de son rôle écologique, le marais incarne également un patrimoine culturel et historique. Ses prairies naturelles, ses zones inondées, ses vestiges d’anciens usages témoignent d’un lien profond entre l’homme et son environnement. Le site s’impose aujourd’hui comme un lieu d’observation, de sensibilisation et de transmission, où la découverte de la nature s’allie à la prise de conscience des grands enjeux environnementaux contemporains :
•            la préservation des zones humides, véritables éponges naturelles et réservoirs de biodiversité,
•            la lutte contre les effets du changement climatique, grâce à leur rôle de stockage du carbone,
•            la valorisation d’un patrimoine naturel et culturel unique

Voir les engagements du studio Empreinte Graphic

Conscient de la demande territoriale pour connaître le Marais Noir de St Coulban et de son fort potentiel à la sensibilisation aux enjeux environnementaux (biodiversité, fonctions des zones humides, changements climatiques), la Fédération Départementale des Chasseurs d’Ille-et-Vilaine (FDC35) a décidé d’améliorer son offre pédagogique autour du Marais Noir de St-Coulban en s’inscrivant dans les démarches nationales existantes.

Dans le cadre des projets à venir, la fédération souhaite présenter le site en entrée de site mais aussi informer les visiteurs que le site est ouvert lors des journées dédiées. En effet des visites non cadrées peuvent nuire au nichage des oiseaux qui trouvent refuge ici lors des périodes de migration. L’objectif est d’utiliser le moins de panneaux possible et de concentrer les informations à des endroits stratégiques pour éviter de perturber les perspectives paysagères.

fleur de près
panorama paysage avec panneau et homme avec jumelle

Entre design et pédagogie

Chaque choix, des matériaux aux illustrations, a été pensé pour répondre à un double enjeu :
offrir aux visiteurs une expérience claire et enrichissante,
préserver la tranquillité de la faune et la beauté du paysage.

Ainsi, la signalétique devient un pont entre l’humain et la nature, un outil qui relie l’histoire du lieu à l’expérience de ceux qui le découvrent.

forêt
homme avec jumelle
panneau affichage le marais de saint coulban

1. Une identité graphique claire et pédagogique

Les panneaux s’appuient sur une direction artistique sobre et intemporelle :
• des illustrations au trait, réalisées spécialement pour le site, permettent de reconnaître rapidement les oiseaux, les plantes et les paysages,
• une palette de couleurs naturelles crée un univers visuel en cohérence avec l’écosystème

Chaque élément graphique est pensé comme un outil de médiation : rendre le lieu accessible à tous les publics, tout en valorisant la richesse du patrimoine naturel.

→ Voir un autre projet de mobilier sculptural et signalétique dans une zone naturelle protégée situé à Thue et Mue – Calvados


2. L’intégration du panneau signalétique in situ et respect de écosytème

Le mobilier a été conçu pour s’intégrer discrètement au paysage. Inspirés des coërons, arbres fossilisés emblématiques du marais noir, le bois brûlé des panneaux signalétiques installés rappellent la technique japonaise du bois brûlé (Shou-Sugi-Ban).

Ce choix esthétique et technique présente des avantages :
• durabilité
• résistance
• teinte naturel et profonde, qui se fond dans l’environnement
Le panneau devient ainsi un élément du paysage, respectueux de l’écosystème, tout en portant l’identité du marais.

voir les coordonnées GPS du site 1 : Entrée du marais par l’ancienne route de Chateauneuf d’Ille et Vilaine / Coordonnées GPS :48°33’35.3 »N 1°55’09.1 »W / Adresse : 35540 Miniac-Morvan

voir les coordonnées GPS du site 2 : Entrée du marais par la ferme de Boulienne / Coordonnées GPS : 48°34’04.2 »N 1°54’45.3 »W / Adresse : 11 D7, 35430 Saint-Père-Marc-en-Poulet

marais avec arbre mort dedans
photo d'ensemble homme jumelle et panneau affichage
homme avec jumelle de près

3. Une conception sur mesure pour la communication événementielle du marais avec une innovation design

Au-delà de la fonction informative, la signalétique a été conçue comme un outil vivant et évolutif.
Un dispositif sur mesure a été imaginé : une boîte transparente en plexiglas, intégrée au panneau, permettant d’abriter les animations et actualités du marais.
• Elle se ferme à clé pour protéger les documents,
• Elle est conçue pour limiter la condensation,
• Son format permet aux équipes sur place de mettre à jour facilement les informations : visites guidées, événements ponctuels.
Cet élément est le fruit d’une conception design innovante pour répondre à un besoin spécifique des personnes qui font vivre le marais. Ce design garantit une signalétique utile autant pour le public que pour les gestionnaires du Marais noir de Saint-Coulban.

4. Une signalétique au service de la préservation

Informer, orienter et sensibiliser : les panneaux d’interprétation rappellent que le respect du silence et des limites d’accès est essentiel pour préserver les oiseaux, dont certains sont très sensibles à la présence humaine.
Ils mettent aussi en valeur la diversité floristique et faunistique des prairies naturelles, et replacent le marais dans un écosystème plus large lié à la Baie du Mont-Saint-Michel.

En résumé, cette signalétique incarne une valeur ajoutée double :
• elle est fonctionnelle et pédagogique pour les visiteurs,
• elle est respectueuse et durable pour le site.

Légendes des illustration des panneaux signalétique du Marais noir de Saint-Coulban

1. Le marais est un site d’hivernage et de reproduction pour les oiseaux. Plus de 160 espèces différentes y ont été observées, principalement des canards en hiver (sarcelles, souchets, pilets, siffleurs), des passereaux et des hérons nicheurs au printemps.

2. Les oiseaux sont très sensibles à la présence humaine. Le dérangement répété peut entraîner l’abandon du site ou la perte des couvées au printemps.

illustration rendu du panneau
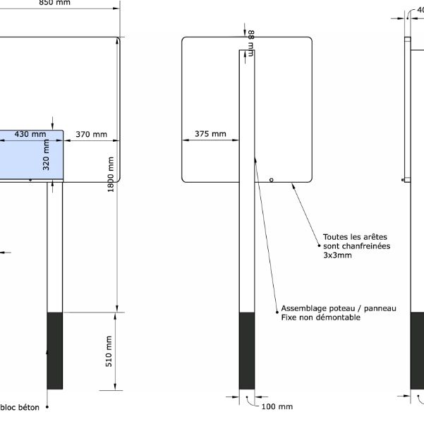
dimension et caractéristique du panneau
visuel de près de la description du marais sur la panneau
photo du bois brûlés
poutre en bois brule
panneau en cours d'assemblage
vu du panneau d'affichage du dessus
illustration complete du rendu de l'affiche

Découvrir plus de projets signalétiques :
→ Maison Médicale de Thaon

enfant qui parle dans la structure

Mobilier signalétique & sculptural
en zone naturelle & humide protégée

Sainte-Croix-Grand-Tonnes
Communauté de communes de Thue-et-Mue